info@XXX.ru
c 08:00 до 20:00
+7 (495) 740-33-35 +7 (925) 553-03-33
г. Москва, 5-й Донскокой проезд,
д.15, стр.5, подъезд 8, оф.101

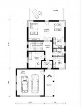
Проект В209/1

  • Проект В209/1
  • Проект В209/1
  • Проект В209/1
  • Проект В209/1
  • Проект В209/1
  • Проект В209/1
  • Проект В209/1
  • Проект В209/1
7 315 000 ₽
Получить расчёт Купить проект

 

В СТОИМОСТЬ ВХОДИТ КОМПЛЕКТАЦИЯ «ТЕПЛЫЙ КОНТУР»:

  • фундамент;
  • несущие стены;
  • перегородки;
  • окна;
  • кровля с утеплением.
  • Характеристики
Характеристики
Тип дома Блочный
Тип материала Газоблок толщиной 375мм
Площадь дома (м2) 209
Габариты дома 19.25x12.50 м
Количество этажей 2
Фундамент монолитная плита
Материал стен Газоблок толщиной 375мм
Перекрытие железобетонное
Кровля металлочерепица
Гараж на 2 авто

Ждем Вас у себя в офисе
для обсуждения деталей проекта!

Политикой конфиденциальности.